Zoutkeetstraatje 8-13
Verhuurd € 995,- p/mTiel – Zoutkeetstraatje 8-13
Dit waanzinnige 2 kamer appartement met terras komt per 1 december 2024 te huur in hartje centrum! De huurperiode is minimaal 2 jaar. De voorkeur gaat uit naar een verhuur voor een langere periode. Voordat de huur definitief doorgaat, zal er een huurderscheck plaatsvinden.
Inkomenseis:
– een vaste baan / contract onbepaalde tijd
– inkomen (1 of 2 verdieners) minimaal bruto maandsalaris € 2.750,00
Download het ‘acceptatieformulier huurwoningen’ op rickzeedijk.nl en ga naar het kopje ‘huren’, vervolgens naar ‘bekijk huuraanbod’. Dan klikt u op acceptatieformulier op de 4e regel. Vul het formulier in en stuur het inclusief de gevraagde bijlagen op naar info@rickzeedijk.nl. Alleen volledig ingevulde formulieren inclusief bijlagen worden in behandeling genomen (de laatste 2 bijlagen mogen eventueel later worden aangeleverd).
Dit aantrekkelijke, frisse appartement is aan de rand van het centrum gesitueerd en met voldoende parkeergelegenheid in de nabije omgeving. Het appartement heeft aan de voorzijde een frans balkon en aan de achterzijde een fijn terras. Het complex zelf is kleinschalig, heeft een lift en eigen berging.
Indeling:
begane grond:
entree, postvakken en intercom. Het appartement is op de eerste verdieping gelegen.
Appartement:
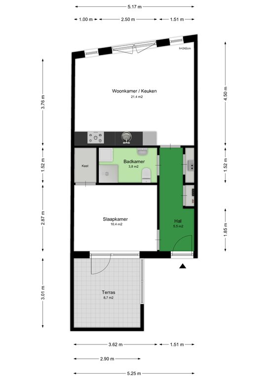
entree, hal, meterkast, intercom, toegang tot de slaapkamer met een ingebouwde kledingkast. Via de slaapkamer is tevens ook het balkon te bereiken. De badkamer is compact en voorzien van een wastafel, toilet en douche. Via de hal kom je terecht in de woonkamer die is uitgerust met een keurige laminaatvloer en frans balkon. De keuken is v.v. een vierpits gaskookplaat, vaatwasmachine, koel/vriescombinatie, apothekerskast, rvs afzuigschouw en voldoende bergruimte.
Algemeenheden / huurcondities:
– hartje centrum gelegen
– kleinschalig modern appartementencomplex met lift
– 2 maanden borgstelling
– circa 1/3 (€ 60,00) van de servicekosten wordt doorberekend aan huurder (inbegrepen in de totale huurprijs)
– er wordt € 120,00 per maand in rekening gebracht voor de stoffering (inbegrepen in de totale huurprijs)
– gas, water en elektra dienen door huurder zelf te worden afgesloten
– recent geplaatste CV – ketel
– huisdieren en roken niet toegestaan
– alle voorzieningen op loopafstand gelegen
– geen huursubsidie mogelijk
– parkeren middels vergunningenstelsel (€ 80,00 per jaar)
– aanvaarding per 1 december 2024 (gunning verhuurder)
Heerlijk wonen in het hart van het bruisende Tiel? Pak nu je kans!
Vul het formulier met bijlagen in en wordt uitgenodigd! ENKEL INGEVULDE EN COMPLETE FORMULIEREN WORDEN GEACCEPTEERD.
Plattegronden
Overdracht
Bouw
Oppervlaktes en inhoud
Indeling
Tuin
CV ketel
Uitrusting
Kadastrale gegevens
Nieuwsgierig naar de waarde van jouw woning of koop- of verkoopplannen? Wij voorzien je graag van een advies op maat! Maak een afspraak voor een vrijblijvend en kosteloos kennismakingsgesprek met ons full service kantoor!
Nieuwsgierig naar de waarde van jouw woning of koop- of verkoopplannen? Wij voorzien je graag van een advies op maat! Maak een afspraak voor een vrijblijvend en kosteloos kennismakingsgesprek met ons full service kantoor!
Nieuwsgierig naar de waarde van jouw woning of koop- of verkoopplannen? Wij voorzien je graag van een advies op maat! Maak een afspraak voor een vrijblijvend en kosteloos kennismakingsgesprek met ons full service kantoor!






























