Zonnedauw 122a
Verkocht € 350.000,- k.k.Tiel – Zonnedauw 122a
Dit ruime 3 kamer appartement ( voormalig 4 kamer ) type “maisonette” heeft een strakke en moderne buitenkant, maar ook de binnenzijde die warmte en huiselijkheid uitstraalt heeft ook veel te bieden !
De royale afmetingen van deze woning geeft het gevoel de beschikking te hebben over een volledige woning.
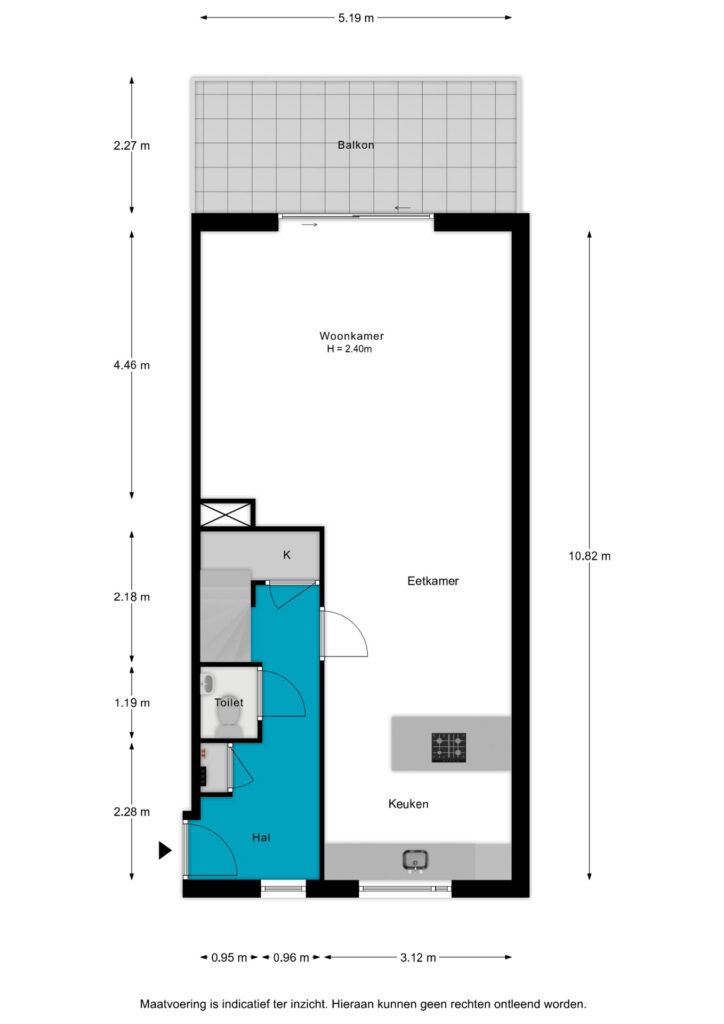
Niet zo wonderlijk, want het woonoppervlak bedraagt maar liefst 107 m² en het balkon is 11 m² groot. Op de eerste woonlaag kom je via de ruime hal in een fraai afgewerkte woonkamer van circa 35 m² groot met aansluitend de open luxe keuken.
Via een royale schuifpui heb je toegang tot het balkon. Op de tweede woonlaag bevinden zich een moderne badkamer en 2 royale slaapkamers ( voormalig 3 ) hetgeen dit appartement ook geschikt maakt voor een gezin met kinderen.
Het appartementen complex is goed onderhouden en heeft een zonnig balkon welke is gelegen op het zuidwesten : lekker de middag en avondzon dus!
In de wijk waar dit complex ligt, zijn de voorzieningen op een prima niveau, net om de hoek liggen een drietal basisscholen en ook het goed gesorteerde winkelcentrum “Passewaaij” is op een steenworp afstand te vinden. Binnen een paar minuten fietsen sta je op het eigen NS-station van de wijk met een directe, snelle verbinding naar Utrecht en de Randstad.
Indeling:
Begane grond: centrale entree met brievenbussen, trapopgang en een separate (fietsen) berging.
Eerste verdieping:
entree, ruime hal, meterkast, toilet met fonteintje, ruime trapkast, riante woonkamer met een moderne pvc afgewerkte vloer met hoge plinten en gestukte wanden! Via de schuifpui kom je op het zonnige en ruime terras.
De luxe open keuken – 2025 – is straatgericht en biedt een royale L-vormige keukenopstelling met diverse inbouwapparatuur waaronder een inductie kookplaat met geïntegreerde afzuiginstallatie, quooker, koel- vriescombinatie, vaatwasmachine, voldoende bergruimte en mooi aanrechtblad.
Tweede verdieping:
overloop met licht koepel, cv-ruimte, een praktische grote inloopberging met de witgoedaansluitingen, recht opgetrokken royale slaapkamers, luxe badkamer voorzien van inloopdouche, 2e toilet, mooie vloer- en wandtegels en een vaste wastafel met meubel.
Algemeen / bijzonderheden / buitensituatie:
– woonoppervlakte: 107 m²
– inhoud:290 m³
– energielabel C
– 2 ruime slaapkamers ( voormalig 3 )
– moderne woonkamer, keuken én badkamer
– ruime living met groot zonnig balkon
– nabij alle voorzieningen gelegen
– uitstekende en rustige woonlocatie
– gezonde en goed georganiseerde VVE
– maandelijkse bijdrage € 175,00
Kom kijken naar dit centraal gelegen ruime 3 kamer appartement! Bel of e-mail ons: een afspraak is zo gemaakt!
Overdracht
Bouw
Oppervlaktes en inhoud
Indeling
Tuin
CV ketel
Uitrusting
Kadastrale gegevens
Nieuwsgierig naar de waarde van jouw woning of koop- of verkoopplannen? Wij voorzien je graag van een advies op maat! Maak een afspraak voor een vrijblijvend en kosteloos kennismakingsgesprek met ons full service kantoor!
Nieuwsgierig naar de waarde van jouw woning of koop- of verkoopplannen? Wij voorzien je graag van een advies op maat! Maak een afspraak voor een vrijblijvend en kosteloos kennismakingsgesprek met ons full service kantoor!
Nieuwsgierig naar de waarde van jouw woning of koop- of verkoopplannen? Wij voorzien je graag van een advies op maat! Maak een afspraak voor een vrijblijvend en kosteloos kennismakingsgesprek met ons full service kantoor!





































