Trichtstraat 14
Beschikbaar € 335.000,- k.k.Tiel – Trichtstraat 14
Aan ruimte geen gebrek! — welkom aan de Trichtstraat 14 in Tiel.
Deze royale tussenwoning biedt 126 m² woonruimte, een perceel van 170 m² en een uiterst praktische indeling die ideaal is voor gezinnen of doorstromers. De ligging is perfect: parkeergelegenheid voor de deur, de supermarkt op loopafstand en een zonnige achtertuin op het zuidwesten waar je tot in de avond heerlijk buiten zit.
Binnen tref je een woning die op onderdelen aandacht verdient qua afwerking en luxe, maar die vooral veel potentie biedt om er een modern en comfortabel thuis van te maken.
Je beschikt over 4 slaapkamers, kunststof kozijnen met HR++ beglazing, buitenzonwering aan voor- én achterzijde en aan de achterzijde zowel op de begane grond als de eerste verdieping rolluiken. Extra fijn is de dubbele schuur in de achtertuin: ideaal voor fietsen, opslag of hobby’s.
Dit pand heeft een eigen website. Kijk op trichtstraat14.nl.
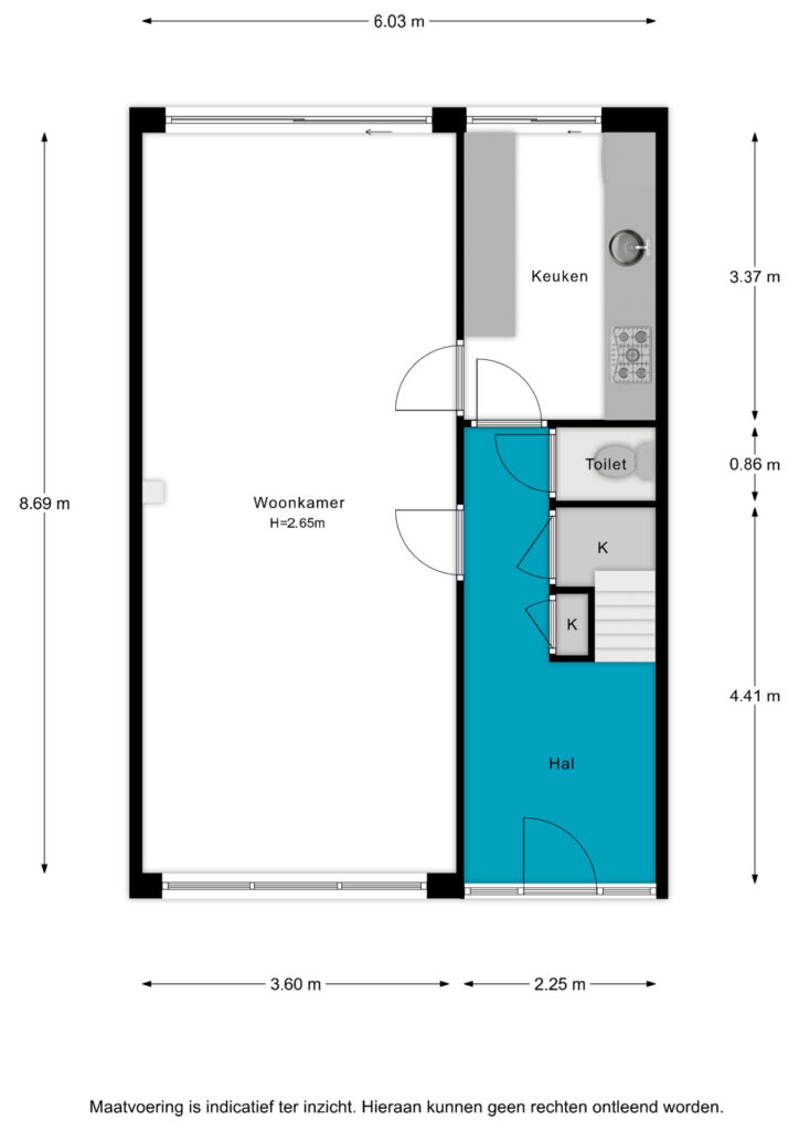
Globale indeling:
Begane grond:
entree, hal, meterkast, toilet, keuken voorzien van 5-pits gaskookplaat, afzuigkap, vaatwasser, koelkast, vriezer en voldoende bergruimte.
De woonkamer is heerlijk licht door beide raampartijen aan voor – en achterzijde. Via een schuifpui is de achtertuin te bereiken.
Eerste verdieping:
overloop met toegang tot drie (voormalig vier) slaapkamers. De badkamer is voorzien van een inloopdouche, toilet en vaste wastafel.
Tweede verdieping:
de voorzolder is voorzien van opstelling CV – ketel (eigendom) en biedt voorts toegang tot een lichte slaapkamer. Op deze verdieping zijn ook voldoende bergmogelijkheden.
Tuin:
zowel voor – als achtertuin heeft een zonnescherm en in de achtertuin bevinden zich een tweetal schuren met elektra. De achtertuin ligt op het zuid- westen en hierdoor is de middag – en avondzon goed aanwezig.
Pluspunten op een rij:
– 126 m² woonoppervlak
– perceel 170 m²
– zonnige achtertuin op het zuidwesten
– energielabel C
– 4 slaapkamers
– kunststof kozijnen met HR++
– buitenzonwering + rolluiken
– dubbele schuur
– parkeren voor de deur
– voorzieningen op loopafstand
Kortom: een woning met een sterke basis, volop ruimte én mooie kansen om het helemaal naar eigen smaak te moderniseren.
Maak snel een afspraak—wij laten je dit ruime huis graag zien!
Overdracht
Bouw
Oppervlaktes en inhoud
Indeling
Tuin
CV ketel
Uitrusting
Kadastrale gegevens
Nieuwsgierig naar de waarde van jouw woning of koop- of verkoopplannen? Wij voorzien je graag van een advies op maat! Maak een afspraak voor een vrijblijvend en kosteloos kennismakingsgesprek met ons full service kantoor!
Nieuwsgierig naar de waarde van jouw woning of koop- of verkoopplannen? Wij voorzien je graag van een advies op maat! Maak een afspraak voor een vrijblijvend en kosteloos kennismakingsgesprek met ons full service kantoor!
Nieuwsgierig naar de waarde van jouw woning of koop- of verkoopplannen? Wij voorzien je graag van een advies op maat! Maak een afspraak voor een vrijblijvend en kosteloos kennismakingsgesprek met ons full service kantoor!






























































