Tolhuisstraat 39
Beschikbaar € 369.000,- k.k.Tiel – Tolhuisstraat 39
Prachtig appartement in hartje stad gelegen. Kom kijken bij deze geheel instapklare maisonnette.
Met een woonoppervlak van 153 m², deels HR ++ glas, luxe keuken en badkamer zal je volledig verrast worden!
Begane grond:
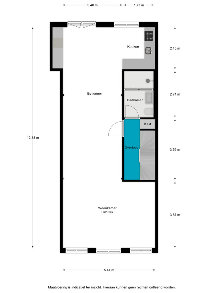
entree, hal, meterkast, toegang tot trapgang naar…..
eerste verdieping:
mooie riante woonkamer v.v. strakke wanden en vloeren, luxe keuken voorzien van natuurstenen aanrechtblad, combi-oven / magnetron, inductie kookplaat met afzuigschouw, flinke koelkast, vaatwasmachine en voldoende bergruimte.
Deze ruimte beschikt over een frans balkon op het zuiden: je krijgt dus lekker de zon binnen!
De luxe badkamer bevindt zich ook op deze verdieping en is voorzien van een inloopdouche, vaste wastafel met meubel, design radiator, vloer- en wandtegels alsmede mechanisch ventilatie.
tweede verdieping:
overloop met mooie lichtinval, separaat toilet en toegang tot 3 flinke slaapkamers. De ouderslaapkamer is hier ook voorzien van een ‘frans’ balkon. Ook is hier een ruime kamer aanwezig met de witgoed opstelling.
Algemeen / bijzonderheden:
* woonoppervlak: 153 m²
* inhoud: 495 m³
* VVE in oprichting
* appartement v.v. 8 zonnepanelen
* airconditioning op beide woonlagen aanwezig
* strak afgewerkt
* luxe keuken en badkamer
* hartje centrum gelegen;
* parkeren middels parkeervergunning.
* loopafstand parkeergarage
De Tolhuisstraat 39 is gelegen op 5 minuten loopafstand van het gezellige centrum van Tiel. Ook zijn restaurants en de bakker letterlijk ‘om de hoek’ gelegen.
Dit stads appartement is 153 m² groot dus als (door) starter heb je volop de ruimte!
Kom je kijken?
Overdracht
Bouw
Oppervlaktes en inhoud
Indeling
Tuin
CV ketel
Uitrusting
Kadastrale gegevens
Nieuwsgierig naar de waarde van jouw woning of koop- of verkoopplannen? Wij voorzien je graag van een advies op maat! Maak een afspraak voor een vrijblijvend en kosteloos kennismakingsgesprek met ons full service kantoor!
Nieuwsgierig naar de waarde van jouw woning of koop- of verkoopplannen? Wij voorzien je graag van een advies op maat! Maak een afspraak voor een vrijblijvend en kosteloos kennismakingsgesprek met ons full service kantoor!
Nieuwsgierig naar de waarde van jouw woning of koop- of verkoopplannen? Wij voorzien je graag van een advies op maat! Maak een afspraak voor een vrijblijvend en kosteloos kennismakingsgesprek met ons full service kantoor!
































