Huis kopen bij Rick Zeedijk Makelaardij
van het begin tot het einde goed geregeld!

Tiel – Tolhuisstraat 39

Prachtig appartement in hartje stad gelegen. Kom kijken bij deze geheel instapklare maisonnette.

Met een woonoppervlak van 153 m², deels HR ++ glas, luxe keuken en badkamer zal je volledig verrast worden!

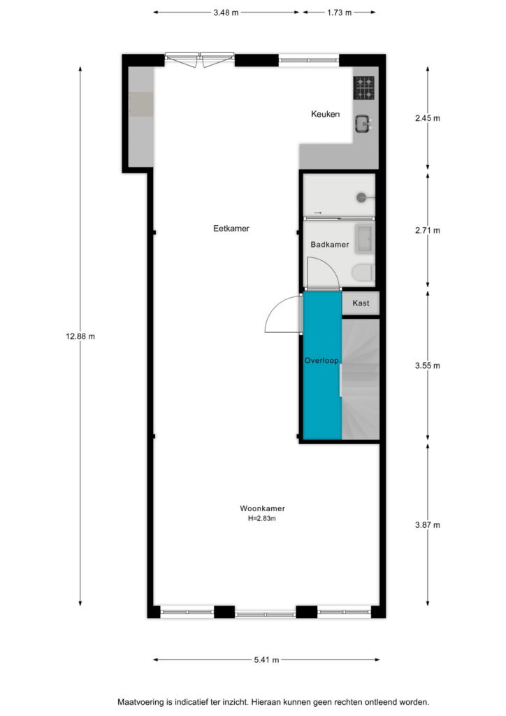
Begane grond:

entree, hal, meterkast, toegang tot trapgang naar…..

eerste verdieping:

mooie riante woonkamer v.v. strakke wanden en vloeren, luxe keuken voorzien van natuurstenen aanrechtblad, combi-oven / magnetron, inductie kookplaat met afzuigschouw, flinke koelkast, vaatwasmachine en voldoende bergruimte.

Deze ruimte beschikt over een frans balkon op het zuiden: je krijgt dus lekker de zon binnen!

De luxe badkamer bevindt zich ook op deze verdieping en is voorzien van een inloopdouche, vaste wastafel met meubel, design radiator, vloer- en wandtegels alsmede mechanisch ventilatie.

tweede verdieping:

overloop met mooie lichtinval, separaat toilet en toegang tot 3 flinke slaapkamers. De ouderslaapkamer is hier ook voorzien van een ‘frans’ balkon. Ook is hier een ruime kamer aanwezig met de witgoed opstelling.

Algemeen / bijzonderheden:

* woonoppervlak: 153 m²
* inhoud: 495 m³
* VVE in oprichting
* appartement v.v. 8 zonnepanelen
* airconditioning op beide woonlagen aanwezig
* strak afgewerkt
* luxe keuken en badkamer
* hartje centrum gelegen;
* parkeren middels parkeervergunning.
* loopafstand parkeergarage

De Tolhuisstraat 39 is gelegen op 5 minuten loopafstand van het gezellige centrum van Tiel. Ook zijn restaurants en de bakker letterlijk ‘om de hoek’ gelegen.

Dit stads appartement is 153 m² groot dus als (door) starter heb je volop de ruimte!

Kom je kijken?

Lees meer...
Klanten vertellen Lees ervaringen
Sinds 1998 de makelaar voor Tiel e.o.
Deskundigheid, Betrouwbaarheid, Zekerheid
Een afspraak maken is zo geregeld!

Plattegronden

Overdracht

Vraagprijs:
€ 364.000,- k.k.

Aanvaarding:
In overleg

Aangeboden sinds:
28 november 2025, 06:00

Laatste wijziging:
1 december 2025, 07:51

Bouw

Type object:
Appartement

Soort bouw:
Bestaande bouw

Dakbedekking:
Bitumineuze Dakbedekking

Type dak:
Plat dak

Isolatievormen:
Dakisolatie, Vloerisolatie, Dubbelglas

Oppervlaktes en inhoud

Gebruiksoppervlakte wonen:
153 m2

Inhoud:
495 m3

Oppervlakte overige inpandige ruimten:
0 m2

Oppervlakte externe bergruimte:
0 m2

Indeling

Aantal bouwlagen:
3

Aantal kamers:
5 (waarvan 3 slaapkamers)

Tuin

Heeft achterom:
Nee

CV ketel

CV ketel:
Intergas

Warmtebron:
Gas

Bouwjaar:
2018

Combiketel:
Ja

Eigendom:
Eigendom

Uitrusting

Warm water:
CV ketel

Verwarmingssysteem:
CV ketel

Parkeergelegenheid:
Openbaar parkeren, Parkeervergunningen

Kadastrale gegevens

Perceeloppervlakte:
0 m2
Gratis waardebepaling bij Rick Zeedijk Makelaardij

Nieuwsgierig naar de waarde van jouw woning of koop- of verkoopplannen? Wij voorzien je graag van een advies op maat! Maak een afspraak voor een vrijblijvend en kosteloos kennismakingsgesprek met ons full service kantoor!