Merelstraat 32
Verkocht € 340.000,- k.k.Tiel – Merelstraat 32
Starters opgelet: instap klaar wonen in een gezellige wijk waar de buren nog écht omkijken naar elkaar!
Ben je op zoek naar jouw eerste koopwoning? Dan is dit je kans! In de geliefde en gemoedelijke wijk ‘Het Ooij’ in Tiel staat deze sfeervolle en instapklare woning op jou te wachten.
Een buurt waar de sfeer dorps aanvoelt, kinderen nog buiten spelen en buren een praatje met elkaar maken.
Deze woning heeft een eigen website: merelstraat32.nl
Waarom je hier blij van wordt:
– Intern helemaal op orde – je hoeft alleen nog je meubels mee te nemen
– Strak afgewerkt met lichte wanden en een moderne vloer
– Nieuwe keuken – stijlvol, fris en van alle gemakken voorzien
– Mooie, vernieuwde badkamer met inloopdouche
– Drie slaapkamers – ideaal voor werken, logees of een jong gezin
– Praktische bergzolder – altijd handig voor je seizoensspullen
– Diepe achtertuin – volop plek om te relaxen of lekker buiten te eten
– Karakteristieke bouwstijl met charmante mansardekap en dakpannen
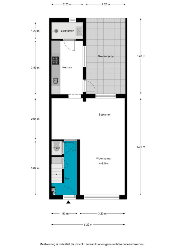
– woonoppervlak: 84 m² / inhoud 320 m³
Deze woning biedt alles wat je als starter nodig hebt: comfort, sfeer, ruimte én een fijne woonomgeving. Hier woon je niet alleen prettig, je voelt je er ook direct thuis.
De uitnodiging staat – kom kijken en ontdek of dit jouw eerste (of volgende) thuis wordt!
Overdracht
Bouw
Oppervlaktes en inhoud
Indeling
Tuin
CV ketel
Uitrusting
Kadastrale gegevens
Nieuwsgierig naar de waarde van jouw woning of koop- of verkoopplannen? Wij voorzien je graag van een advies op maat! Maak een afspraak voor een vrijblijvend en kosteloos kennismakingsgesprek met ons full service kantoor!
Nieuwsgierig naar de waarde van jouw woning of koop- of verkoopplannen? Wij voorzien je graag van een advies op maat! Maak een afspraak voor een vrijblijvend en kosteloos kennismakingsgesprek met ons full service kantoor!
Nieuwsgierig naar de waarde van jouw woning of koop- of verkoopplannen? Wij voorzien je graag van een advies op maat! Maak een afspraak voor een vrijblijvend en kosteloos kennismakingsgesprek met ons full service kantoor!























































