Hoogeindsestraat 3b
Verkocht € 410.000,- k.k.Tiel – Hoogeindsestraat 3b
Stijlvol wonen in hartje centrum – volledig gemoderniseerd 4-kamerappartement (2024) van 125 m²
Wonen in de levendigheid van het centrum, maar dan met het comfort en de luxe van nu?
Dan is dit strak afgewerkte 4-kamerappartement op de tweede én derde verdieping precies wat je zoekt!
In 2024 is dit appartement tot in detail vernieuwd. Van de keuken tot de badkamer, van vloer tot wanden – werkelijk alles is aangepakt. Het enige wat jij hoeft te doen? Verhuizen!
Wat maakt dit appartement uniek?
– Spiksplinternieuwe open keuken – strak vormgegeven, voorzien van hoogwaardige inbouwapparatuur en meer dan
genoeg bergruimte. Hier kook je met plezier!
– Moderne badkamer – met ruime inloopdouche, stijlvol wastafelmeubel en eigentijdse afwerking.
– Prachtige vloer met vloerverwarming – comfortabel, energiezuinig en helemaal van deze tijd. Energielabel B !
– Strak gestukte wanden – zorgen voor een frisse, moderne basis in het hele appartement.
– Vier ruime kamers – ideaal om te wonen, werken én ontspannen. Perfect voor een gezin, thuiswerkers of woningdelers.
– Lichtkoepels op de bovenste etage – extra daglicht én een heerlijk ruimtelijk gevoel.
– Gelegen op de 2e en 3e verdieping – volop licht, privacy én fraai uitzicht over de stad.
– Toplocatie – letterlijk midden in het centrum met winkels, horeca, cultuur en openbaar vervoer om de hoek.
Voor wie is dit appartement perfect?
Voor de stadsliefhebber die wil genieten van comfort. Voor de starter of doorstromer die geen zin heeft in klussen. Voor iedereen die op zoek is naar een zorgeloze, instapklare woning met karakter én luxe.
Samengevat: ruimte, sfeer, luxe én een toplocatie.
Maak snel een afspraak en ervaar het zelf – dit is jouw nieuwe thuis in de stad!
Overdracht
Bouw
Oppervlaktes en inhoud
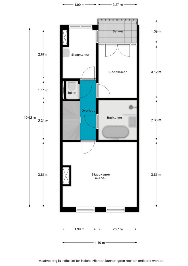
Indeling
Tuin
CV ketel
Uitrusting
Kadastrale gegevens
Nieuwsgierig naar de waarde van jouw woning of koop- of verkoopplannen? Wij voorzien je graag van een advies op maat! Maak een afspraak voor een vrijblijvend en kosteloos kennismakingsgesprek met ons full service kantoor!
Nieuwsgierig naar de waarde van jouw woning of koop- of verkoopplannen? Wij voorzien je graag van een advies op maat! Maak een afspraak voor een vrijblijvend en kosteloos kennismakingsgesprek met ons full service kantoor!
Nieuwsgierig naar de waarde van jouw woning of koop- of verkoopplannen? Wij voorzien je graag van een advies op maat! Maak een afspraak voor een vrijblijvend en kosteloos kennismakingsgesprek met ons full service kantoor!









































