Gildehof 2
Beschikbaar € 624.500,- k.k.Tiel – Gildehof 2
Gildehof 2, Tiel – wonen op een plek waar alles samenkomt
Soms komt er een woning voorbij die simpelweg klopt. Waar ruimte, comfort, afwerking én locatie naadloos samenkomen. Gildehof 2 in Tiel is zo’n huis. Een 2-onder-1-kap woning die direct goed voelt zodra je aan komt rijden — rustig gelegen, maar met alles wat je nodig hebt letterlijk om de hoek.
Met maar liefst 145 m² woonoppervlak en een perceel van 300 m² biedt deze woning precies de ruimte waar veel gezinnen naar op zoek zijn — en vaak nét misgrijpen. Hier heb je het wél.
De begane grond is strak en sfeervol afgewerkt met een moderne pvc-vloer, strak gestuucte wanden en comfortabele vloerverwarming. De openslaande deuren verbinden binnen moeiteloos met buiten, waardoor de tuin echt een verlengstuk van je leefruimte wordt. De diepe achtertuin is ideaal ingedeeld, waardoor je altijd kunt kiezen tussen zon en schaduw – met achterin een heerlijke plek om tot in de avond van de zon te genieten.
De complete keuken en woonkamer vormen samen het hart van het huis: ruim, licht en praktisch ingericht voor het dagelijkse leven, maar ook perfect om gasten te ontvangen.
Op de verdiepingen vind je vier volwaardige slaapkamers, ideaal voor een gezin, thuiswerken of hobbyruimte. Dankzij de airco’s op de 1e en 2e verdieping is het hier ook in de zomer heerlijk comfortabel. Alles is netjes onderhouden en verzorgd — je kunt hier echt zó in.
Wat deze woning extra bijzonder maakt, zijn de externe ruimtes. Eén daarvan is uitstekend geschikt als praktijkruimte aan huis, kantoor of studio. Werk en privé combineren zonder concessies — het kan hier gewoon.
De tuin is diep en biedt volop privacy en mogelijkheden. Of je nu wilt tuinieren, spelen met de kinderen of gewoon genieten van rust: hier kan het allemaal.
En dan de locatie…
Die maakt het plaatje compleet. Je woont hier:
* op korte afstand van scholen, sportvelden en supermarkt
* nabij het NS-station Tiel
* snelle toegang tot uitvalswegen richting o.a. Utrecht en Arnhem
Dit pand heeft een eigen website. Kijk op gildehof2.nl voor meer informatie en documentatie.
Globale indeling:
Begane grond:
entree, hal, toilet, meterkast, toegang tot woonkamer en keuken. De woning kenmerkt zich doordat de trap de afscheiding is tussen keuken en woonkamer. De keuken bevindt zich aan de voorzijde en is compleet: 5-pits gaskookplaat inclusief wokbrander, afzuigkap, vaatwasser, stoomoven, combi- magnetron, koelkast, vriezer en voldoende bergruimte.
De woonkamer is tuingericht, heeft openslaande deuren en gestuucte wanden.
De begane grond heeft een pvc-vloer met vloerverwarming.
Eerste verdieping:
overloop met toegang tot een drietal recht opgetrokken slaapkamers. De badkamer is modern en voorzien van een inloopdouche, 2e toilet en vaste wastafel met dubbele kraan.
Op de overloop hangt een airco om deze verdieping te kunnen verwarmen dan wel te verkoelen.
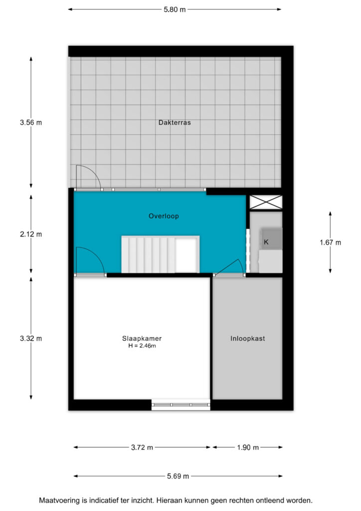
Tweede verdieping:
voorzolder voorzien van witgoed. Toegang tot een tweetal (slaap)kamers, waarvan de één inloopkast is met opstelling CV en mechanische ventilatie en de ander een slaapkamer is met airconditioning.
De verdieping heeft een laminaatvloer (brede plank) en toegang tot een dakterras.
Tuin:
de achtertuin is heerlijk diep en heeft een buitendouche en een tweetal bijgebouwen. De schuur achterin is ideaal voor tuinopslag en fietsen, de andere is ideaal voor praktijkruimte. Deze ruimte is namelijk geïsoleerd, heeft elektra en verwarming.
Algemeenheden / bijzonderheden:
– half vrijstaand huis
– woonoppervlak 145 m² / perceel 300 m²
– energielabel B
– 8 zonnepanelen
– vloerverwarming begane grond
– moderne badkamer
– complete keuken
– keurig beklede trappen
– airco’s op 1e en 2e verdieping
– dakterras 2e verdieping
– overal horren
– laadpaal aanwezig
– mogelijkheid tot praktijkruimte in één van de bijgebouwen
– ideale ligging ten aanzien van alle voorzieningen
– aanvaarding: in overleg
Dit is zo’n plek waar je rustig woont, maar nergens ver vandaan bent.
Kortom: een verrassend complete woning op een plek waar je elke dag weer blij van wordt.
Ben jij klaar om dit huis zelf te ervaren? Plan snel een bezichtiging — dit is er zo één die je niet wilt missen.
Overdracht
Bouw
Oppervlaktes en inhoud
Indeling
Tuin
CV ketel
Uitrusting
Kadastrale gegevens
Nieuwsgierig naar de waarde van jouw woning of koop- of verkoopplannen? Wij voorzien je graag van een advies op maat! Maak een afspraak voor een vrijblijvend en kosteloos kennismakingsgesprek met ons full service kantoor!
Nieuwsgierig naar de waarde van jouw woning of koop- of verkoopplannen? Wij voorzien je graag van een advies op maat! Maak een afspraak voor een vrijblijvend en kosteloos kennismakingsgesprek met ons full service kantoor!
Nieuwsgierig naar de waarde van jouw woning of koop- of verkoopplannen? Wij voorzien je graag van een advies op maat! Maak een afspraak voor een vrijblijvend en kosteloos kennismakingsgesprek met ons full service kantoor!


























































