Duifkruid 37
Verkocht € 400.000,- k.k.Tiel – Duifkruid 37
Modern wooncomfort op een prima woonlocatie in Passewaaij !
Ben je op zoek naar een fijne gezinswoning op een ideale locatie in Tiel? Deze moderne tussenwoning gelegen aan de Duifkruid 37 in de geliefde wijk Passewaaij biedt precies dat: comfort, gemak en een heerlijke plek om thuis te komen.
De woning ligt in een rustige straat, op steenworp afstand van het NS-station en het winkelcentrum – ideaal voor wie zowel de rust van een woonwijk als de dynamiek van goede voorzieningen zoekt.
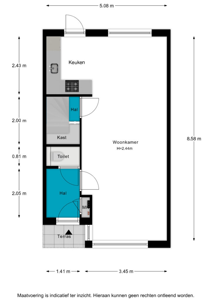
Binnen tref je een praktisch ingedeelde woning aan die alles biedt wat je nodig hebt. De keuken is een echte eyecatcher: modern, smaakvol en voorzien van alle gemakken om hier met plezier te koken en tafelen.
Indeling:
entree, hal, meterkast, toilet, gezellige woonkamer met erker, open moderne keuken voorzien van inductie kookplaat met afzuigschouw, koelkast, combi magnetron en indirecte verlichting.
Eerste verdieping:
overloop met toegang tot 3 slaapkamers en badkamer.
Tweede verdieping
ruime zolderberging met mogelijkheid van een extra slaapkamer. NB. de zolder ( 23 m²) kan op dit moment niet worden meegerekend als woonoppervlak. Het dakraam is net een slag te klein om de zolder als woonoppervlak te laten meetellen. Er dient namelijk minimaal 0,5 m² lichtinval te zijn. Dit is door plaatsing van een groter dakraam eenvoudig te realiseren.
Achter de woning wacht een heerlijke verrassing: een sfeervolle veranda in de tuin waar je het hele jaar door kunt genieten van het buitenleven. Of je nu in de ochtend met een kop koffie zit of ’s avonds gezellig borrelt met vrienden – dit is jouw plek om tot rust te komen.
Kortom: een fijne, instapklare woning op een toplocatie.
Perfect voor wie op zoek is naar comfort en gemak in een moderne woonomgeving.
Wat pluspunten op een rij:
* woonoppervlak: 80 m² ( zie opmerking 2e verdieping )
* aan heerlijk brede straat gelegen
* gebouwd in fraaie steen
* woonkamer v.v. erker
* bouwjaar 1999
* luxe keuken
* 3 slaapkamers
* bergzolder met mogelijkheid van extra slaapkamer.
Kom kijken en ervaar het zelf – dit is wonen in Passewaaij op z’n best.
Overdracht
Bouw
Oppervlaktes en inhoud
Indeling
Tuin
CV ketel
Uitrusting
Kadastrale gegevens
Nieuwsgierig naar de waarde van jouw woning of koop- of verkoopplannen? Wij voorzien je graag van een advies op maat! Maak een afspraak voor een vrijblijvend en kosteloos kennismakingsgesprek met ons full service kantoor!
Nieuwsgierig naar de waarde van jouw woning of koop- of verkoopplannen? Wij voorzien je graag van een advies op maat! Maak een afspraak voor een vrijblijvend en kosteloos kennismakingsgesprek met ons full service kantoor!
Nieuwsgierig naar de waarde van jouw woning of koop- of verkoopplannen? Wij voorzien je graag van een advies op maat! Maak een afspraak voor een vrijblijvend en kosteloos kennismakingsgesprek met ons full service kantoor!
















































