Huis kopen bij Rick Zeedijk Makelaardij
van het begin tot het einde goed geregeld!

Tiel – Aldenhagelaan 14

Deze prachtige en perfect onderhouden twee onder één kapwoning is gelegen aan de rand van één van de meeste gewilde woonwijken van Tiel.

Deze royale onderhoudsarme woning beschikt o.a. over een mooie oprit, inpandig te bereiken garage, 12 zonnepanelen, kunststofkozijnen en een fraaie voor- en achtertuin. De achtertuin is strak en onder architectuur aangelegd en meet circa 18 m¹ diep en 10 meter breed! Met veel zon en schaduw plekken kunt u altijd genieten van de rust, ruimte en heerlijk zitten met vrienden, familie en kids!

Dankzij de ligging aan de rand van de wijk zijn de uitvalswegen en recreatievoorzieningen, scholen, winkels, sportvelden, ziekenhuis nabij terwijl u toch rustig en bijna landelijk woont. Kortom: we hebben het hier over een uitstekende woonlocatie!

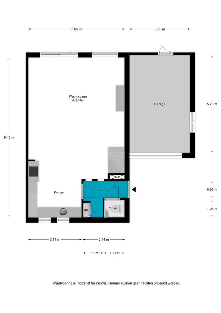
Indeling:

entree, hal, meterkast en toilet, toegang tot prachtige woonkamer met (gas) haard en veel lichtinval. De open keuken is voorzien van een inductie kookplaat, afzuigkap, oven, magnetron, quooker, koelkast, vaatwasmachine en een mooi aanrechtblad.

Eerste verdieping:

overloop, 3 ruime slaapkamers en mooie badkamer v.v. douche hoek, 2e toilet en dubbele vaste wastafel.

Tweede verdieping:

via vaste trap naar ruime zolder berging. Opstelling gasgestookte hete luchtketel.

Algemeen / bijzonderheden

* woonoppervlak 119 m²
* inhoud 545 m²
* energielabel C
* perceel 368 m² eigen grond
* prachtige diepe achtertuin
* eigen achterom
* bouwjaar 1984
* kunststof kozijnen / topgevel keraliet
* rustig en toch centraal wonen

Kortom, de Aldenhagelaan 14 biedt een unieke kans om te wonen in een prachtige, moderne woning in een geliefde buurt.

Plan snel een bezichtiging en ervaar zelf de locatie, het comfort en de ruimte die deze woning te bieden heeft!

Lees meer...
Klanten vertellen Lees ervaringen
Sinds 1998 de makelaar voor Tiel e.o.
Deskundigheid, Betrouwbaarheid, Zekerheid
Een afspraak maken is zo geregeld!

Plattegronden

Overdracht

Vraagprijs:
€ 590.000,- k.k.

Aanvaarding:
In overleg

Aangeboden sinds:
1 april 2026, 06:00

Laatste wijziging:
1 april 2026, 12:45

Bouw

Type object:
Woonhuis

Soort bouw:
Bestaande bouw

Dakbedekking:
Pannen

Type dak:
Zadeldak

Isolatievormen:
Dakisolatie, Muurisolatie, Vloerisolatie, Dubbelglas, Volledig geïsoleerd

Oppervlaktes en inhoud

Perceeloppervlakte:
368 m2

Gebruiksoppervlakte wonen:
119 m2

Inhoud:
545 m3

Oppervlakte overige inpandige ruimten:
42 m2

Oppervlakte externe bergruimte:
4 m2

Indeling

Aantal kamers:
4 (waarvan 3 slaapkamers)

Tuin

Type:
Achtertuin

Oriëntering:
Noordoost

Heeft achterom:
Ja

Staat:
Aangelegd onder architectuur

CV ketel

Combiketel:
Nee

Uitrusting

Aantal parkeerplaatsen:
2

Warm water:
Geiser eigendom

Verwarmingssysteem:
Hete lucht verwarming

Parkeergelegenheid:
Op eigen terrein

Kadastrale gegevens

Perceeloppervlakte:
368 m2
Gratis waardebepaling bij Rick Zeedijk Makelaardij

Nieuwsgierig naar de waarde van jouw woning of koop- of verkoopplannen? Wij voorzien je graag van een advies op maat! Maak een afspraak voor een vrijblijvend en kosteloos kennismakingsgesprek met ons full service kantoor!