Prinses Julianaweg 13
Onder bod € 595.000,- k.k.Geldermalsen – Prinses Julianaweg 13
Een heerlijk plek waar vrijheid en mogelijkheden samenkomen!
Maar ook een plek waar de tijd heeft stilgestaan en waar deze eenvoudige vrijstaande woning is gelegen op een royaal perceel van 1579 m² eigen grond!
Of u nu houdt van de charme van het bestaande eenvoudige huis of deze met zorg wilt moderniseren of….liever droomt van een nieuwbouw huis op deze locatie……. het kan hier allemaal!
Indeling:
entree, hal, badkamer met ligbad en vaste wastafel, toilet. Eenvoudige keuken. Ook bevindt zich hier een slaapkamer.
De woonkamer treft u aan de voorzijde.
Eerste verdieping:
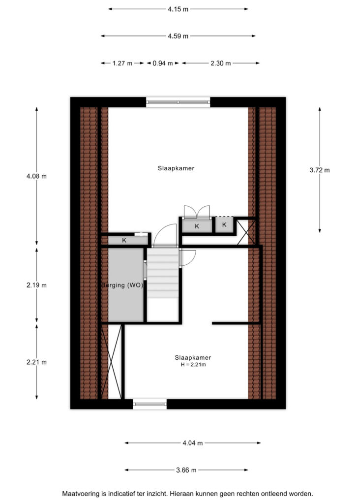
overloop met toegang tot 2 tal slaapkamers ( 1 bereikbaar via tussenkamer ) en bergruimte.
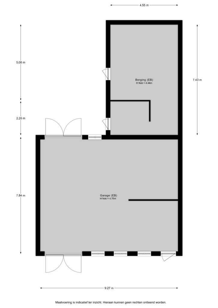
Tuin: aan de voorzijde brengt de oprit u naar de garage alsmede een ruime werkplaats / voormalig stal. Deze ruimte is uitermate geschikt als werkplaats, berging, hobby ruimte. Lekker multifunctionele ruimte dus!
Achter dit bijgebouw treft u de royale tuin / weiland met een heerlijk weids uitzicht. Een uitzicht wat immers nooit verveeld!
Locatie …… locatie…… kom vrijblijvend kijken naar dit object en de mogelijkheden en kansen die deze plek biedt.
Overdracht
Bouw
Oppervlaktes en inhoud
Indeling
Tuin
CV ketel
Uitrusting
Kadastrale gegevens
Nieuwsgierig naar de waarde van jouw woning of koop- of verkoopplannen? Wij voorzien je graag van een advies op maat! Maak een afspraak voor een vrijblijvend en kosteloos kennismakingsgesprek met ons full service kantoor!
Nieuwsgierig naar de waarde van jouw woning of koop- of verkoopplannen? Wij voorzien je graag van een advies op maat! Maak een afspraak voor een vrijblijvend en kosteloos kennismakingsgesprek met ons full service kantoor!
Nieuwsgierig naar de waarde van jouw woning of koop- of verkoopplannen? Wij voorzien je graag van een advies op maat! Maak een afspraak voor een vrijblijvend en kosteloos kennismakingsgesprek met ons full service kantoor!

































































