Erichemseweg 80
Verkocht onder voorbehoud € 789.500,- k.k.Erichem – Erichemseweg 80
Een heerlijke plek…..vol mogelijkheden….landelijke rust met stedelijk gemak dichtbij…..om verliefd te worden….
Op een mooie bijzondere plek – met uitzicht op een boomgaard met hoogstam fruit – in Erichem ligt deze wel heel fraai gerenoveerde woonboerderij met riant gastenverblijf.
In dit gastenverblijf bevindt zich een toilet, badkamer, werkkamer en op de verdieping 2 riante slaapkamers met badkamer.
De prachtige – grotendeels rietgedekte – woonboerderij heeft een karakteristieke uitstraling met een voorgedeelte met daarachter een deel waar vroeger ( 1850 ) de koeien stonden en waar nu de woonkamer is gerealiseerd waarin het u aan niets zal ontbreken.
Deze verzorgde woonboerderij kenmerkt zich door het goede afwerking niveau, het gebruik van kwalitatief hoogwaardige materialen en de goede staat van onderhoud.
De gehele renovatie is met aandacht en professioneel uitgevoerd met behoud van authentieke elementen, waardoor er een unieke combinatie is ontstaan van historische sfeer met modern hedendaags comfort.
Het is een droomhuis voor de liefhebber!
Dit pand heeft een eigen website. Kijk op erichemseweg80.nl voor alle informatie en documentatie.
Indeling:
zij entree met toegang tot de woonkeuken -met vloerverwarming- en tevens voorzien is van een natuurstenen aanrechtblad, koelkast, AGA fornuis met ovens, vaatwasmachine, grote spoelbak, koelkast en bergruimte.
Toegang tot de woonkamer met houten vloer met vloer convector en openslaande deuren naar buiten. De badkamer is voorzien van vloerverwarming en heeft een inloopdouche, toilet en een vaste wastafel met meubel.
Eerste verdieping:
fraaie verblijfsruimte thans in gebruik als computer- werkhoek en vide. Deze ruimte biedt tevens toegang tot royale slaapkamer met fraaie spanten in het zicht.
De heerlijk vrije en diepe tuin is op het zuiden gelegen en biedt meer dan voldoende privacy, de elektrische toegangspoort en fraaie beukenhagen dragen hieraan op een fraaie wijze bij. Naast het huis is een siertuin gesitueerd met diverse fruitbomen zoals appels, pruimen en kersen. Op het achter terrein bevindt zich een royaal bijgebouw bestaande uit een dubbele garage en gastenverblijf
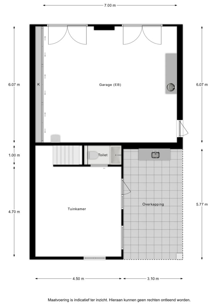
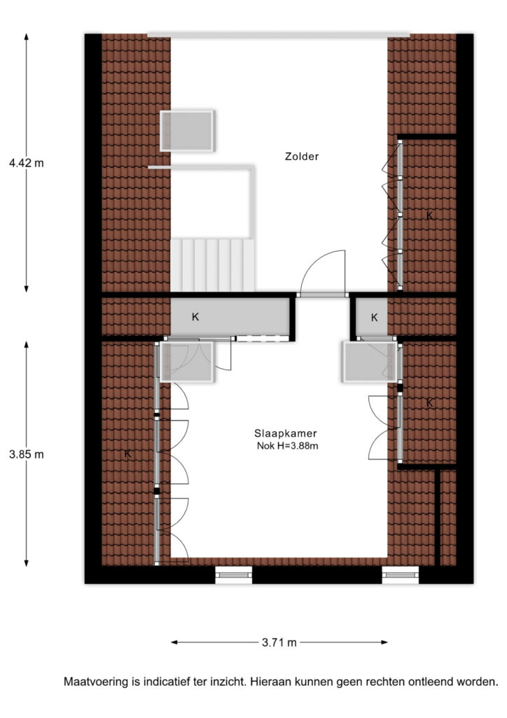
Dit gastenverblijf heeft een eigen groepenkast, c.v. ketel, is v.v. vloerverwarming en op de eerste verdieping voorzien van 2 flinke slaapkamers en een badkamer met douche.
Op de begane grond is het gastenverblijf voorzien van een werkkamer en eigen toilet.
De tuin is verder fraai aangelegd en heeft een grote walnotenboom die heerlijk schaduw biedt op een warme zomerdag.
Algemeen / bijzonderheden / buitensituatie:
* Gemeentelijk Monument
* woonoppervlakte woning 120 m² / woonoppervlakte gastenverblijf 80 m²
* totaal 3 royale slaapkamers en 1 werkkamer.
* voorzien van 12 zonnepanelen.
* voorzien van c.v. gasgestookte ketel ( 2022 / eigendom )
* bijgebouw voorzien van c.v. gasgestookte ketel ( Nefit 2016 / eigendom )
* dak- muur- en vloerisolatie
* grotendeels riet gedekt.
* mooie vrije achtertuin
Erichem valt onder de gemeente Buren en heeft naast de vestingstad Buren zelf (1.5 km), Tiel en Geldermalsen beide liggen op fietsafstand (3.5 km) met alle benodigde faciliteiten zoals scholen, ziekenhuis, sportverenigingen, horeca en winkels.
Bent u op zoek naar rust, ruimte en natuur, ervaar dit mooie object in dit fraaie gebied van de Betuwe. Weg van de drukte en het lawaai, maar nog steeds – dankzij de ligging nabij rijksweg A 15 en knooppunt Deil – zijn alle Randstedelijke faciliteiten binnen circa een halfuur bereikbaar.
U bent van harte welkom om even te komen kijken ! De beste indruk van deze woning krijgt u natuurlijk tijdens een bezichtiging.
Wij proberen onze bezichtigingen altijd in samenspraak met verkoper en koper te plannen en nemen ruim de tijd, zodat u op uw gemak de woning kan bekijken en ervaren.
Overdracht
Bouw
Oppervlaktes en inhoud
Indeling
Tuin
CV ketel
Uitrusting
Kadastrale gegevens
Nieuwsgierig naar de waarde van jouw woning of koop- of verkoopplannen? Wij voorzien je graag van een advies op maat! Maak een afspraak voor een vrijblijvend en kosteloos kennismakingsgesprek met ons full service kantoor!
Nieuwsgierig naar de waarde van jouw woning of koop- of verkoopplannen? Wij voorzien je graag van een advies op maat! Maak een afspraak voor een vrijblijvend en kosteloos kennismakingsgesprek met ons full service kantoor!
Nieuwsgierig naar de waarde van jouw woning of koop- of verkoopplannen? Wij voorzien je graag van een advies op maat! Maak een afspraak voor een vrijblijvend en kosteloos kennismakingsgesprek met ons full service kantoor!


















































